14*11m建房图纸,三层欧式风格别墅建房图纸
发布时间:2022-07-26 浏览:次
     本套自建房别墅设计图是一款欧式风格的建房图纸,独具风情而不落俗套。蔚蓝色的琉璃屋顶,与天空颜色相呼应。米白色的整体外墙砖面,底部以棕灰色瓷砖收边,再加上些许金黄色的雕花点缀,优雅而精致。门廊高而宽敞,两侧直立的罗马柱,更添大气的风姿,倍感阔绰。 
本套建房图纸整体多数量的开窗设计,为居家生活提供了良好的采光与通风条件。让户外的森然空气透窗而入,让东升的缕缕阳光不请自来。

建房图纸一层平面图
穿过门廊,进入屋内,入眼的墙将空间进行隔断,可有效保护家人隐私。左侧的客厅面积开阔,接待客人倍有排面,容纳家人团聚也游刃有余。 
 
 
      
      
	  
    本套建房图纸整体多数量的开窗设计,为居家生活提供了良好的采光与通风条件。让户外的森然空气透窗而入,让东升的缕缕阳光不请自来。

建房图纸一层平面图
穿过门廊,进入屋内,入眼的墙将空间进行隔断,可有效保护家人隐私。左侧的客厅面积开阔,接待客人倍有排面,容纳家人团聚也游刃有余。
东南角的卧室自带卫生间,可用作长辈房,方便老人起夜。东南角的小卧室,也可以改造成杂物间,储存闲置物品。
北侧的餐厨一线相连,方便日常的备餐与出餐。独立式的厨房设计,更能隔绝厨房油烟。厨房南面的柴火房更是契合了乡村生活习惯,寒冷的冬天,可以烧着柴火,围炉话谈,还能烤上三两个红薯,品味生活的甘甜。
建房图纸二层平面图
    二层的卧室数量充足,即便是多口之家,也能充分容纳全家人的生活。远亲来访,或者逢年过节时的家人团聚,住宿也毫无压力。
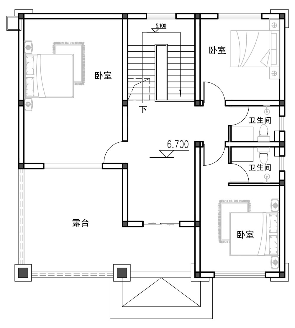
正南向带有独立露台的小卧室,可改造成书房。处理工作或学习疲劳时,就能在露台凭栏远眺,用户外的绿色治愈疲累的眼睛。西面的大露台可以打造成阳光房,营造一家畅聊或放松心情的室内好去处。
建房图纸三层平面图
   三层的室内格局,与二层基本一致。多余的卧室可打造成家庭影音厅、健身房、棋牌室等功能间,为居家生活提供更多休闲娱乐方式。邀请三五好友来玩,也能玩得尽兴。
西南向的大露台,既可用于日常的晾晒,也可以摆放休闲桌椅用来日常休闲。或者打造成屋顶花园,种植些许绿色植物,也是不错的选择。在盛开的缤纷中,装点生活,也愉悦心情。
 
                             
       
         
               
               
               
               
               
               
                                                                        